2024 | Professional

Entrant Company
Category
Client's Name
Country / Region
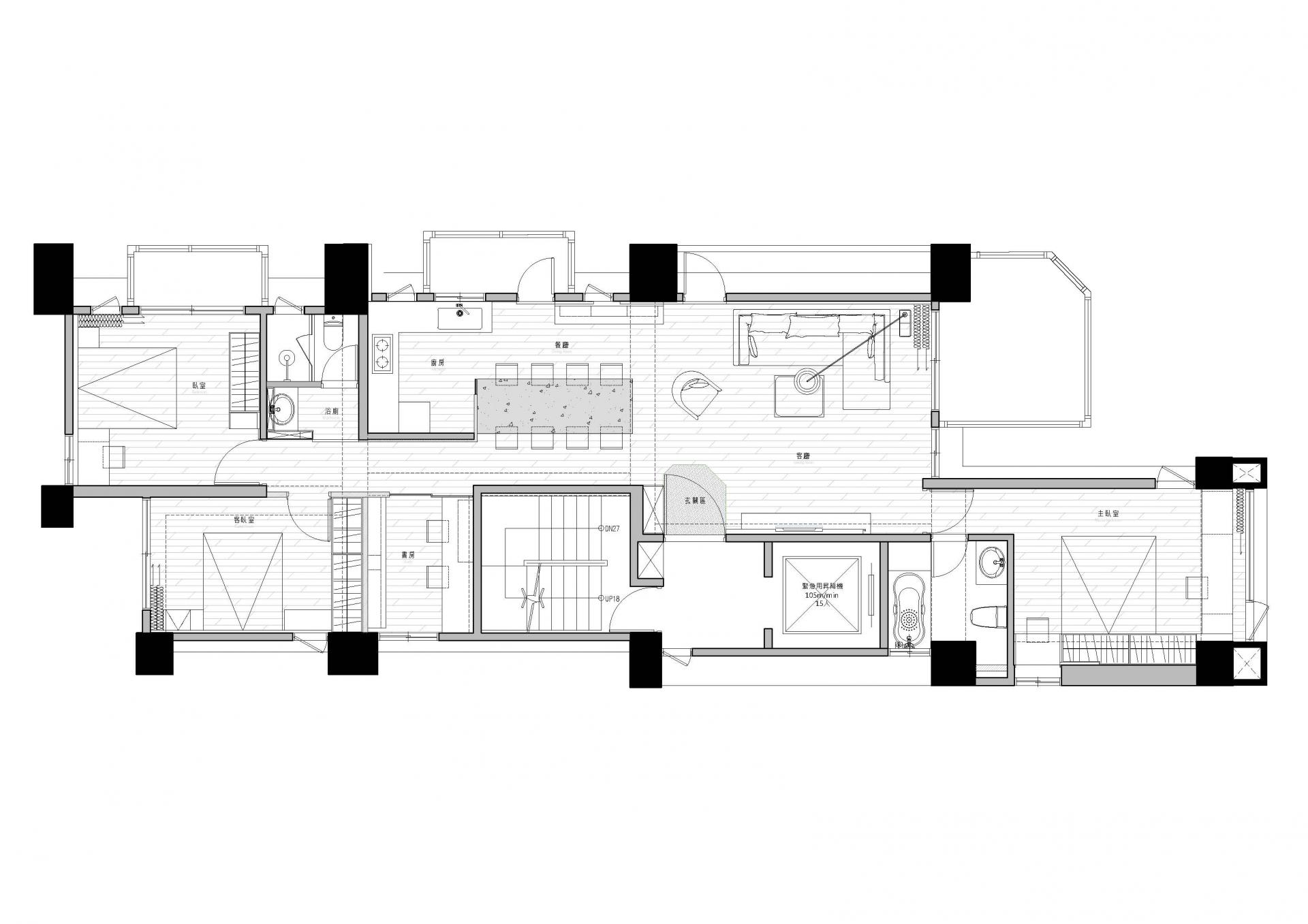
A refreshing contrast of the outdoor greenery with the white interior appearance creates a sleek and relaxing atmosphere. The distinctively pristine scenery reveals classic simplicity that resists time changing.
The wind sneaks into the night, moistening things silently like rains accompanied by a spring breeze that quietly dampens the earth at night. We skillfully resolved the Feng-Shui taboos in spontaneous approaches caused by unnecessary windows and doors. For instance, the blind curtains on the French window create a light-tight corner and make a backdrop to wealth positioning. Second, we covered the originally overhead transom windows in the sofa back wall with wood veneers. Additionally, the sliding door arrangement in the kitchen fixes the door-to-door taboo from the entrance to the balcony. Furthermore, harmonious color palettes and balanced lighting design embellish the healthy and peaceful mind home.
To achieve an Eco-friendly lifestyle and healthy living, we selected natural plant-based paint, odor-free and fire-retardant. Besides, non-toxic wood coating can resist high temperature and alcohol stains. Additionally, we conduct ESG principles consistently on material selections. We practice Eco-friendly awareness by adopting sustainable and recyclable ESG-compliant products, such as setting up Bolon flooring in the mudroom at the entrance and placing a Neolith sintered stone dining table in the dining area.
Seamlessly, we replaced originally different-sized doors with ceiling-height ones to organize the walls. Besides, the study room glass sliding door enhances the transparency and illumination of the narrow corridor aside from the dining table. Therefore, clearness and brightness complement a fresh living space.
The entire project contributes a clean and pristine style, as the homeowner prefers. Additionally, a minimalist design approach complements the recreation requirement. As modest furnishings coordinated with sophisticated art collections, the project performs the homeowner’s unique characteristics.
Due to home security, the isolated power supply at the entrance consistently keeps the recessed lighting on to prevent theft. The walls applied with light-shaded paint reveal a layering texture softly and complement the pastel sofa and rug, beguilingly showing a grand style within the recreation area.
Credits
Entrant Company
hm-LI Studio
Category
Furniture Design - Seating & Comfort
Entrant Company
Grove Bags
Category
Packaging Design - Limited Edition
Entrant Company
Shenzhen USEER Robotics Co., Ltd/ Suzhou Chong Gu Gu Technology Co., LTD
Category
Product Design - Animals & Pets (NEW)
Entrant Company
China University of Technology | Taipei
Category
Product Design - Student Design