2025 | Professional

Entrant Company
Category
Client's Name
Country / Region
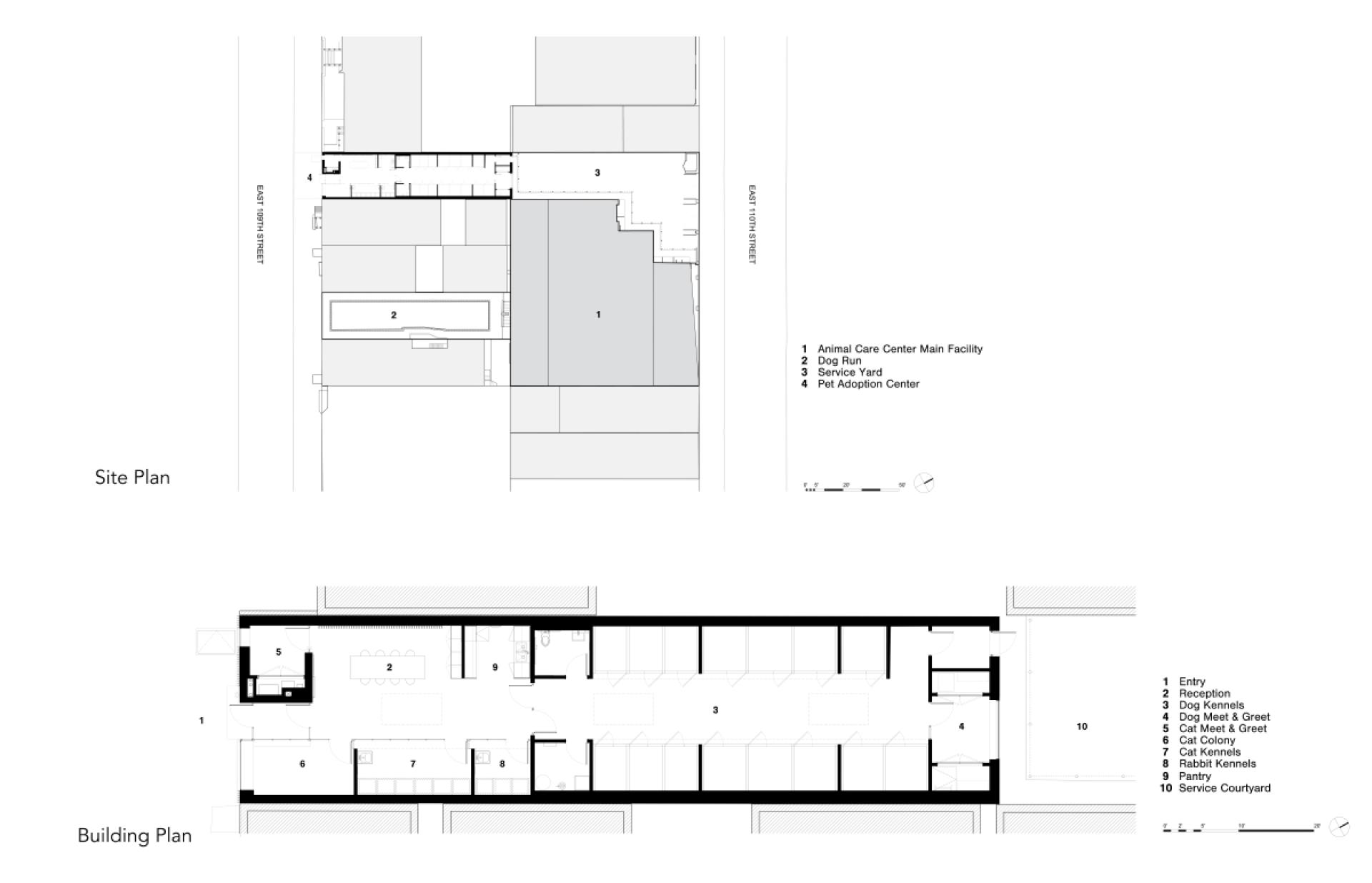
The Pet Adoption Center is an adaptive reuse of a 1930s garage on the grounds of Animal Care and Control's larger animal facility. Their decision to use the building was a sustainable gesture that created an intimate atmosphere for adoption. The former garage door became the entry, and a large south-facing window to bring natural light for animals and the lobby.
The garage exterior had significantly deteriorated. So, the work included extensive repair and was painted white. The opportunity to provide a more neighborhood-friendly facade came with the installation of a metal "rain screen." This lightweight armature creates a playful lenticular effect with changing colors as one walks east and west. Abstract graphic color is rare in the architectural realm but is a strong community signifier. Twenty-six colors slide from yellow tones to green to blue on the perpendicular-facing 4-inch steel fins. The spaces between and the proud edges are grey. Viewed from across the street, the façade appears grey, and the color flickers softly in the light.
The interior has a gracious welcome area for onboarding. A shared table is less challenging than a typical reception desk, accessible and adaptable. The lobby's main feature is the playful 3D mural that utilizes a lenticular dimensionally mirroring the façade. It shows a custom graphic of a cat when seen from the north and a dog from the south, fostering a relaxed sense of community and play. The plan is based on animal and human safety, with cats in the front and dogs in the rear. Glass partitions with a graphic frit pattern ensure visibility to the animals while reducing aggressive behavior due to direct animal-to-animal eye contact.
The adoption success rate rose from three weeks to 10 days in the first three months, doubling the number of adoptions in the previous facility. Visitor response and local word of mouth, social media, and animal websites have been extremely encouraging. The cat colony window provides a stronger sense of safety. There is growing optimism around adoption!
Credits
Entrant Company
Shan Shan Chuan Interior Design
Category
Interior Design - Residential
Entrant Company
FSILON HOME BUILDING MATERIALS LIMITED CO.,LTD.
Category
Architectural Design - Sustainable Living / Green
Entrant Company
China Southwest Architectural Design and Research Institute Corp.Ltd
Category
Landscape Design - Parks & Open Space Landscape
Entrant Company
R-land
Category
Landscape Design - Open Space Design