2025 | Professional

Entrant Company
Category
Client's Name
Country / Region
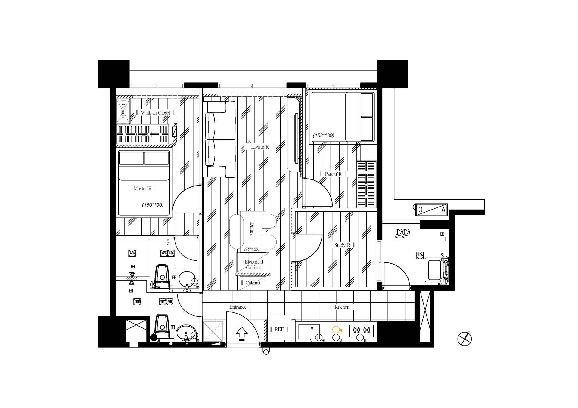
This newly built home in Hsinchu is designed for a young woman and her mother, transforming a compact space into a peaceful sanctuary. By combining natural materials with flowing circulation, the design creates a fresh, calming environment perfect for modern living.
The interior features a soothing pistachio green as its base, paired with wooden floors, cabinets, and earthy furniture that exude a natural, grounded vibe. At the entrance, a multifunctional partition combining a shoe cabinet and screen takes center stage. Crafted with wood-grain panels and textured glass, it filters sunlight beautifully, casting delicate patterns that balance nature and craftsmanship.
The public areas are designed with flexibility in mind, seamlessly blending private and social functions. Behind the partition, the open-plan living and dining spaces are unified. The dining area features a versatile island and an expandable table, accommodating both family meals and larger gatherings. It effortlessly connects to the living room, making it an ideal space for hosting casual get-togethers.
Curves play a starring role in the design. In the living room, an arched window blocks streetlights while framing a unique outdoor view. Nearby, the curved corner connecting the window and TV wall is finished with locally sourced stone paper, adding a natural touch on a budget. Subtle indirect lighting enhances textures and creates a cozy, welcoming ambiance.
The private spaces continue the natural, laid-back theme. The long master bedroom includes an L-shaped open wardrobe that doubles as a semi-private dressing area. Soft curves extend the room's flow, while built-in niches offer decorative display space for accessories and fragrances, adding a personal touch. By focusing on key design elements and multifunctional layouts, this home provides a high-quality living experience within a modest budget.
Entrant Company
KOKUYO Co.,Ltd.
Category
Interior Design - Office
Entrant Company
XIA SHANG
Category
Architectural Design - Mix Use Architectural Designs
Entrant Company
School of Architecture,Xi'an University of Architecture and Technology/Archstay Architects
Category
Architectural Design - Adaptive Reuse (NEW)
Entrant Company
Yuqun Huang
Category
Conceptual Design - Artificial Intelligence (AI)