2025 | Professional

Entrant Company
Category
Client's Name
Country / Region
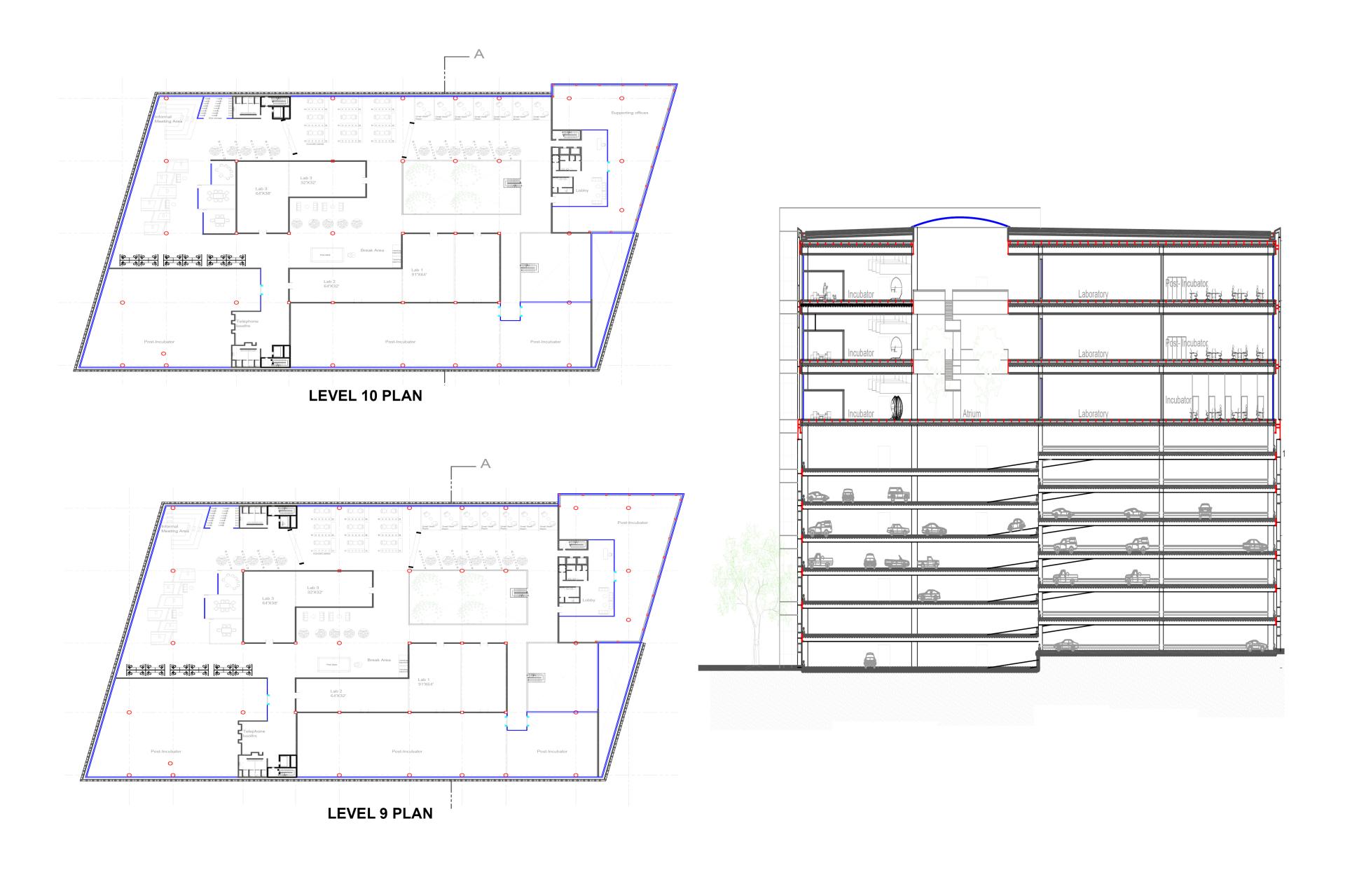
The Nexus Tower: A Landmark for Innovation and Architectural Excellence
The Nexus Tower at Buffalo Niagara Medical Campus (BNMC) is a visionary Business Incubator and Accelerator, designed to foster entrepreneurship, research, and collaboration in a flexible, future-ready environment. Featuring a diagrid structural system, the tower maximizes open, adaptable spaces while enhancing energy efficiency and daylight quality. With central public areas, a café, and shared workspaces, it encourages social interaction and idea exchange. Sustainability is at its core, incorporating bicycle infrastructure, green terraces, and passive energy strategies to promote well-being. More than just an office space, The Nexus Tower is an architectural statement, symbolizing progress, innovation, and limitless potential in Buffalo’s skyline.
Credits
Entrant Company
Beijing Shanhe Jinyuan Art and Design Stock Co., Ltd.
Category
Interior Design - Residential
Entrant Company
Hebei Red Coral Decoration Engineering Co., Ltd.
Category
Interior Design - Recreation Spaces
Entrant Company
Three Squirrels Co., Ltd.
Category
Packaging Design - Retail
Entrant Company
Invision (Shenzhen) Optics Co., Ltd.
Category
Product Design - Outdoor & Exercise Equipment