2025 | Professional

Entrant Company
Category
Client's Name
Country / Region
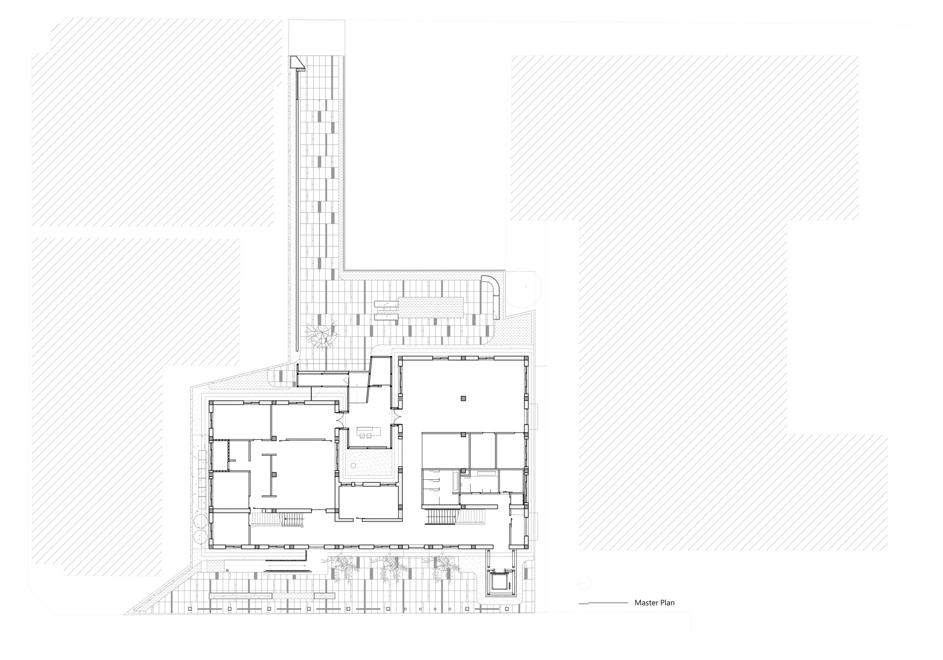
From Grain Bureau Warehouse to Taiwan Literature Hub
Built in the 1950s, this brick warehouse once stored rice for the Grain Bureau. Now reborn as the Taiwan Literature Hub, it holds words, ideas, and Taiwan’s stories.
Its structure retains materials and techniques from the Japanese colonial era. Within its beams and walls, untold languages slowly ferment.
Opening the once-sealed western wall on Shaoxing North Street invited in light and people, reconnecting city and space. A discreet glass elevator merges modernity with the building’s modest past.
To the east, the original concrete wall remains, layered with metal panels that guide the way. A clearer entrance faces Hangzhou North Road, where concrete and metal quietly converse amid staggered greenery.
At the path’s end, a quiet black vestibule awaits—not an end, but the start of a literary journey.
Credits
Entrant Company
TianYu Development Construction Co., Ltd.
Category
Architectural Design - Residential
Entrant Company
Guangdong Jiapeile Educational Equipment Co., Ltd.
Category
Interior Design - Exhibits, Pavilions & Exhibitions
Entrant Company
Parsons School of Design
Category
Product Design - UX / UI / IxD (NEW)
Entrant Company
Nuoqing Shen
Category
Product Design - Smart Technologies