2025 | Professional

Entrant Company
Category
Client's Name
Country / Region
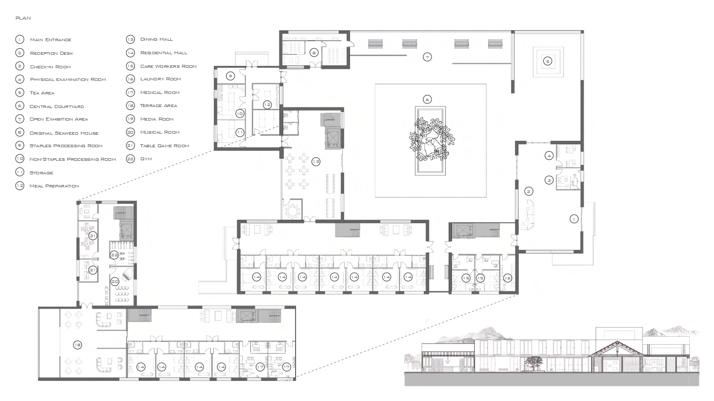
This project envisions a sustainable sanatorium in a coastal village, designed for individuals with Alzheimer’s. Inspired by a local couple’s story, it integrates memory, nature, and community to create a familiar, supportive environment. Combining traditional architecture with sustainable practices, it prioritizes residents’ physical, emotional, and cognitive well-being, offering a sense of home and connection to nature.
This design operates as a dementia-friendly space by integrating sensory gardens, open courtyards, and safe pathways to encourage exploration and reduce disorientation. Interaction is facilitated through accessible layouts and familiar cultural elements that stimulate memory and connection. Key features like passive design and local materials enhance comfort and sustainability, while the cohesive blend of tradition and innovation ensures emotional, cognitive, and physical well-being for residents.
The research is qualitative, aiming to understand the needs of elderly people with Alzheimer’s in rural China. Using interviews, observations, and local news stories, I gathered data on daily challenges and cultural habits. Participants included elders, caregivers, and community members. Results revealed the importance of familiar environments and social connection. Insights guided the design to blend tradition with sustainability, improving eldercare quality and supporting community well-being in rural areas.
Credits
Entrant Company
Chongqing Meidao Interior Design/Huang Huang
Category
Interior Design - Hotels & Resorts
Entrant Company
Fujian EastWest Lifewit Technology CO.,LTD
Category
Product Design - New Category
Entrant Company
Guizhou Lai Shijia Brand Management Co., Ltd.
Category
Packaging Design - Wine, Beer & Liquor
Entrant Company
THE INSTITUTE OF ARCHITECTURAL DESIGN & RESEARCH, SHENZHEN UNIVERSITY, CO., LTD.
Category
Architectural Design - Infrastructure