2025 | Professional

Entrant Company
Category
Client's Name
Country / Region
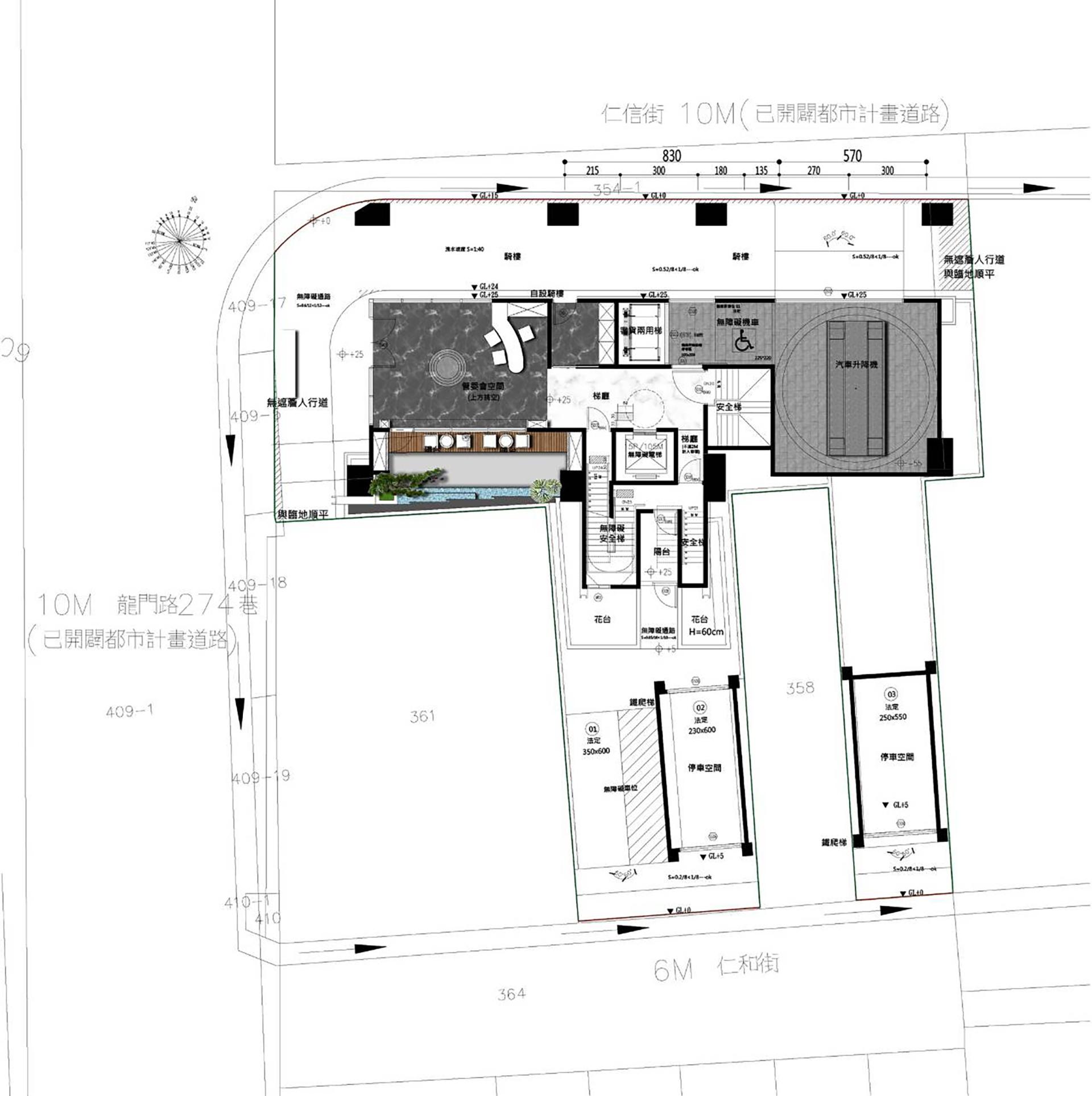
The VIP space design faces significant challenges in small-scale public facility planning, including a sense of spatial constraint and limited dimensions, insufficient functional allocation, restricted circulation and movement flow, conflict between privacy and openness, difficulties in storage and equipment integration, dual-circulation design for post-pandemic considerations, limited environmental control and ventilation, lack of flexibility and adaptability in spatial changes, acoustic and noise control issues, and challenges in creating the desired ambiance.
Through fully intelligent architectural design, a small-scale VIP shared facility can effectively overcome challenges related to spatial limitations, functional integration, circulation optimization, and environmental comfort. Below are the best intelligent solutions for addressing these challenges, ensuring spatial flexibility, comfort, and ambiance: smart lighting control, intelligent access management, automated light and shadow guidance, an AI-powered mail and delivery system, and intelligent dual-circulation management.
In the post-pandemic era, shared facility design must meet dual standards of “health and safety” and “high-efficiency flow.”
Credits
Entrant Company
YU FAN Interior Design
Category
Interior Design - Residential
Entrant Company
JIANGSU DARTEK TECHNOLOGY CO.,LTD
Category
Product Design - Energy Products & Devices
Entrant Company
Shenzhen Huangmai Technology Co., Ltd.
Category
Product Design - Audio & Video Devices
Entrant Company
Shunyuxin Optoelectronics Co., Ltd.
Category
Lighting Design - Art (Interior & Exterior Lighting)