2025 | Professional

Entrant Company
Category
Client's Name
Country / Region
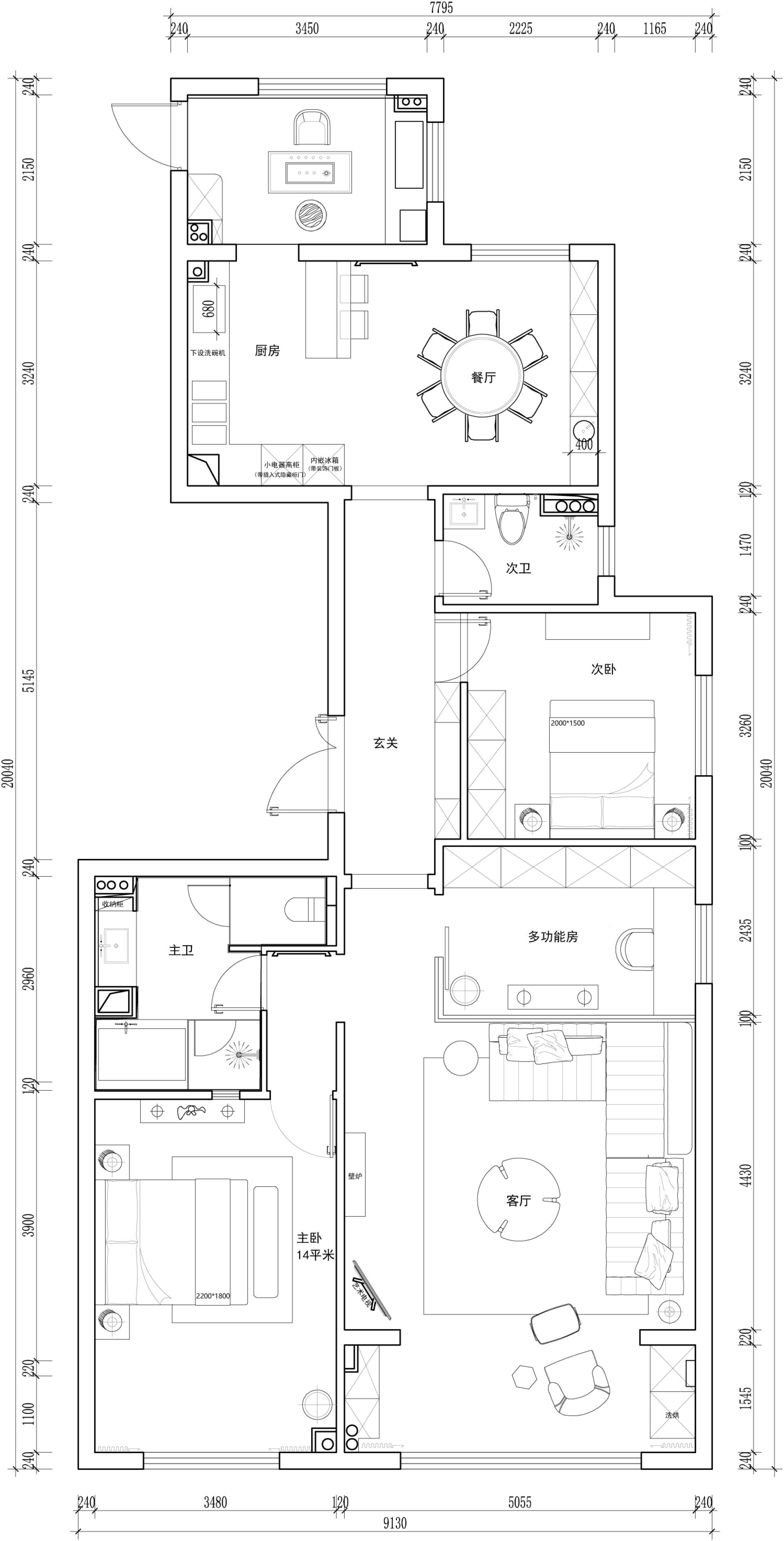
Crafted for a young couple, this 150㎡ private residence merges retro charm with modern comfort. Rooted in classic aesthetics, it adapts to contemporary lifestyles, balancing nostalgic warmth and present - day practicality to create a personalized home.
Entrant Company
HUANG KUO-CHUNGH Art Studio.
Category
Interior Design - Home Studio / Workspaces (NEW)
Entrant Company
Anta (China) Co., Ltd
Category
Interior Design - Retails, Shops, Department Stores & Mall
Entrant Company
TAIWA PRECISE TECHNIQUE CO., LTD.
Category
Product Design - Furnishings
Entrant Company
HZS Design Holding Company Limited
Category
Architectural Design - Mix Use Architectural Designs