2025 | Professional

Entrant Company
Category
Client's Name
Country / Region
Reforming the Grain: Adaptive Reuse of Red Hook Textile Factory
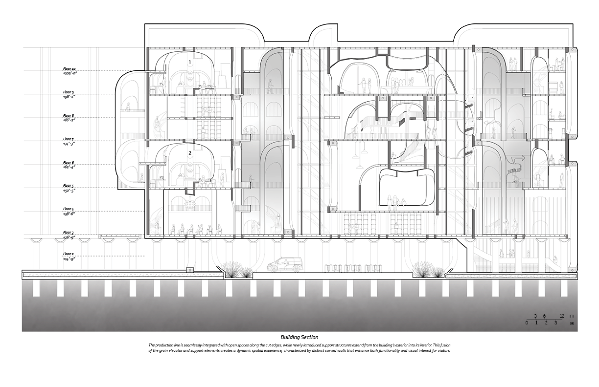
Located in the historic port district of Red Hook, Brooklyn, the project reimagines an abandoned grain elevator as a hybrid of fashion production line, community education hub, and public exhibition space. The design is founded on the belief that sustainability is both environmental and social, and that the reuse of material structures must coincide with the revival of collective memory and craftsmanship.
The project adopts adaptive reuse as its primary sustainable act, preserving the massive concrete silos to minimize embodied carbon. The existing structure is carved to introduce natural ventilation shafts and daylight wells, turning the once-enclosed barrels into breathable, light-filled spaces. Curved glass panels replace sections of concrete, providing transparency while maintaining insulation.
A network of green platforms and catwalks along the façade acts as an environmental filter. Vegetation mitigates heat gain, captures dust, and provides passive shading. Rainwater is harvested and reused through an integrated irrigation system, and interior finishes employ reclaimed wood from local workshops.
The project rebuilds community identity around the heritage of Red Hook’s tailoring and textile industries. Three intersecting circulation systems for visitors, tailors, and production facilitate encounters between artisans, students, and the public. The architecture becomes a social factory that transforms production into education and exhibition. By merging labor, learning, and leisure, the building embodies inclusivity and resilience.
Drawing inspiration from Peter Do’s deconstructivist garments, the façade transforms the concrete frame into a system of folds and layers. Each curved glass opening and platform mimics the rhythm of fabric pleats, creating both structural depth and visual softness. The façade is no longer a static skin; it breathes, shades, grows, and performs as an ecological membrane that connects people, plants, and light.
Ultimately, Reforming the Grain exemplifies how architectural reuse can transcend preservation, turning an obsolete industrial relic into a regenerative, socially engaged ecosystem for the twenty-first century.
Credits
Entrant Company
Ping Xiao/ Ciming Oasis Health Management Hospital
Category
Conceptual Design - Smart Technologies
Entrant Company
Zhiguo Zhang/ Shanxi Heishi Energy Group Co., Ltd.
Category
Conceptual Design - Smart Technologies
Entrant Company
BEDGEAR
Category
Furniture Design - Bedding
Entrant Company
A4DH Branding Services
Category
Packaging Design - Snacks, Confectionary & Desserts