2026 | Student

Entrant Company
Category
Client's Name
Country / Region
The project is an interior renovation of the Energy Management Center on the first floor of the logistics building on the campus of Xi’an University of Architecture and Technology. The center supports campus property management, including the collection of water, electricity, and heating fees, maintenance of energy infrastructure, and elevator operation management. It also serves as a platform for visualizing campus energy use and management performance, aiming to enhance energy awareness and promote energy-saving behavior among faculty and students.
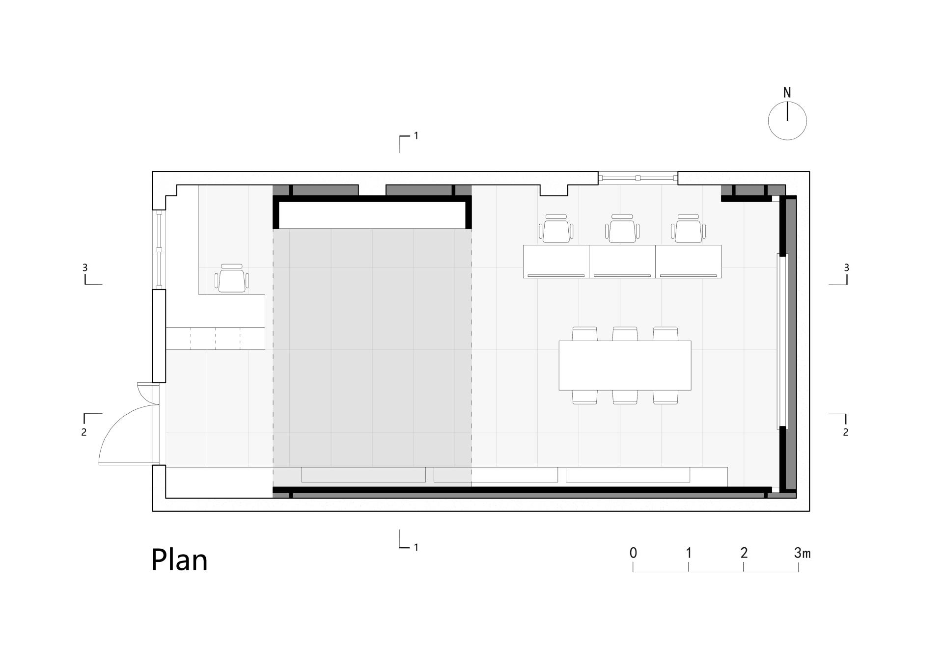
The design addresses three key challenges. First, the renovation area has a narrow rectangular layout and conventional partition walls would reduce openness and create spatial confinement. Second, due to heating system constraints, underfloor radiant heating was not feasible, and exposed radiators and service pipelines undermined spatial coherence. Third, as a venue for energy management and information display, the interior needed to express technical aesthetics aligned with its functional attributes.
In response, the project adopts a “large-room” spatial organization strategy that integrates office and exhibition functions within an open plan, while employing an inner lining strategy as a highly integrated, non-structural mediating system. Extending along the spatial boundaries, the inner lining forms a recognizable architectural interface, incorporating exhibition surfaces, built-in storage, equipment, and service systems. Rather than forming a completely enclosed volume, the inner lining alternates between enclosed and open conditions, allowing the space to be differentiated into exhibition, office, and faculty–student service zones.
At the construction level, the inner lining is deliberately detached from the existing envelope to accommodate columns and building services, with linear lighting emphasizing the sectional profile and articulating the relationship between new and existing elements. Gray micro-cement cladding distinguishes the inner lining from the original white-painted envelope, reinforcing its identity as an independent architectural element. Radiators, required by heating constraints, are rhythmically organized and integrated into the spatial composition.
Through the application of the inner lining strategy, the project achieves an effective integration of function, technology, and spatial expression without altering the existing building structure, creating a campus public space that balances practicality and display, and proposing a transferable design approach for interior renovation of existing buildings.
Credits
Entrant Company
Vasco Electronics S.A.
Category
Product Design - AI-Integrated Devices
Entrant Company
Mi Associates Pte Ltd
Category
Interior Design - Office
Entrant Company
Slow Coral Design
Category
Architectural Design - Adaptive Reuse
Entrant Company
Chint Network Technology Co., Ltd
Category
Product Design - Home Appliances