2025 | Professional

Entrant Company
Category
Client's Name
Country / Region
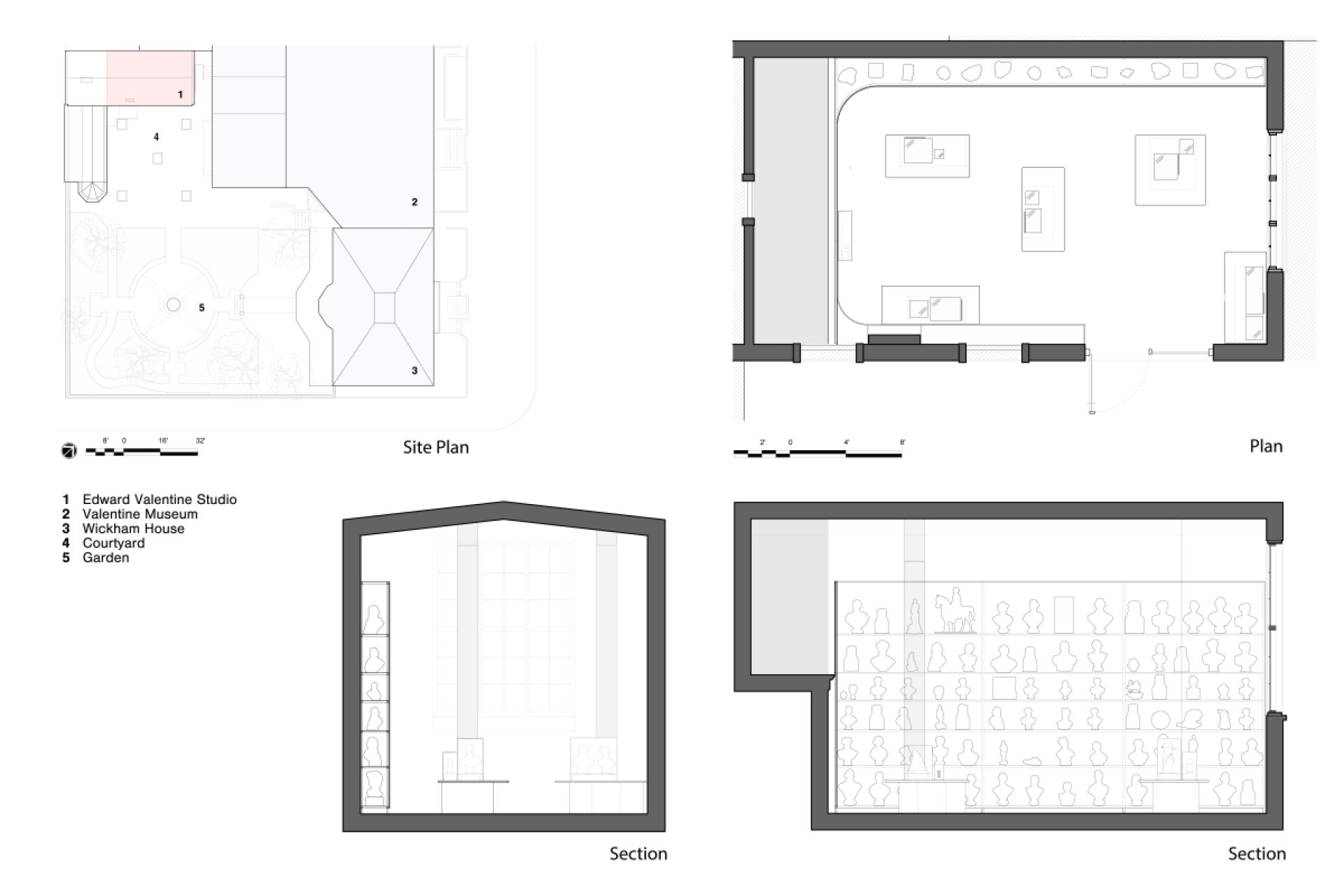
Edward Valentine (1838-1930) was a renowned Beaux Arts sculptor and a key figure in supporting the Lost Cause mythology that permeated the nation after the Civil War. This project is an installation in his studio, located on the campus of the Valentine Museum, an institution founded by his brother and dedicated to Virginia history.
Due to the sensitivity of the subject matter and the complexities of the political context, the museum hosted public engagement sessions before the design began and at each milestone Community input via online surveys, focus groups, group tours, and public programs shaped the final installation as the public voice was given decision-making agency. The installation includes three visitor experiences that combine physical design, media projection, artifacts, and analog community feedback. They work together to reinforce the content strategy of "Power Play," which details the use of racist ideology including violence, economic policy, educational segregation, political power, religion, and media. Though the studio is only 640SF, there is space for learning, reflecting, and engaging in dialogue.
A collection of 84 of Valentine's works is set behind a black scrim. LED strips at each shelf and individual spotlights synchronize with a media projection onto the scrim to strategically reveal and obscure the sculptures as part of a 15-minute presentation. There is no audio, and visitors may join at any point to follow the story. The sculptures illuminate in coordination with diagrams, animations, maps, and photography, giving dramatic effects that simultaneously disempower their presence. There are five "tactics" tables with texts, images, and vitrines. A series of scrims attach from the central tables to the ceiling at the vitrines, bringing the full 20-foot height of the room into view and partially cloaking more racist artifacts from view.
Visitation in 2024 increased by over 125% compared to the same period in 2023, and member visits have more than quadrupled.
Credits
Entrant Company
Beardwood&Co.
Category
Packaging Design - Household Maintenance & Home Improvement
Entrant Company
Central South University of Forestry and Technology
Category
Product Design - Smart Home
Entrant Company
Baidu.com Times Technology (Beijing) Co., Ltd.
Category
Product Design - UX / UI / IxD (NEW)
Entrant Company
江西金叠利包装有限公司
Category
Packaging Design - Cosmetics & Fragrance