2025 | Professional

Entrant Company
Category
Client's Name
Country / Region
In an era where digital interactions dominate, consumers increasingly prioritize convenience and swift access to product information, yet they simultaneously crave novel and immersive experiences. This dual demand presents brands with a unique challenge: to complement their online presence with captivating offline showrooms that transcend traditional retail spaces.
The design philosophy centers on igniting customers' innate curiosity, encouraging them to actively engage with products through multi-sensory experiences, real-time interactions, and dynamic spatial transitions that virtual platforms cannot replicate. This multi-sensory approach not only deepens customers' understanding of product features but also addresses the inherent limitations of digital presentations.
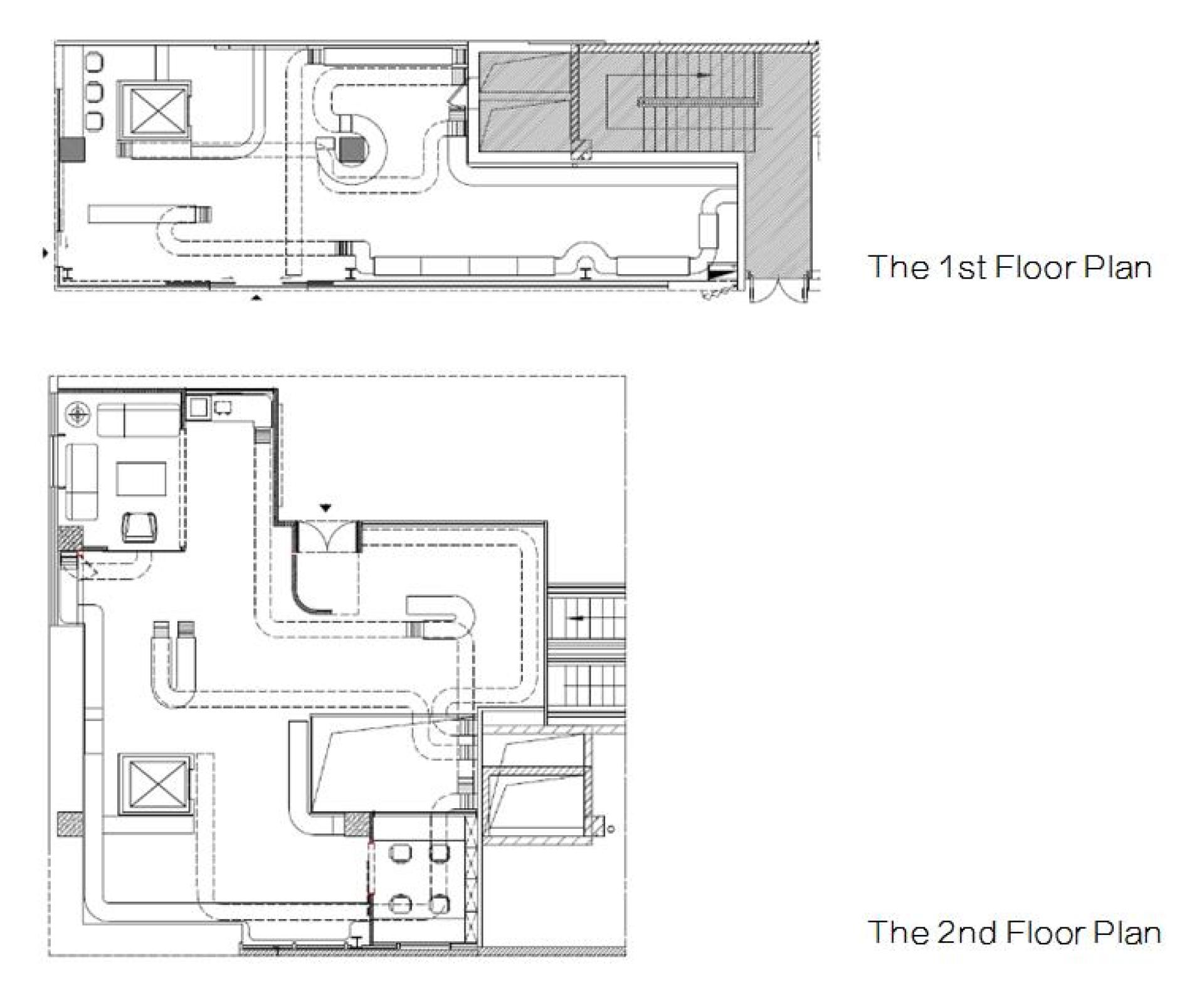
Architecturally, the space employs raw concrete as its foundational material, creating a canvas of industrial authenticity. A striking metal conveyor belt, strategically spanning both levels, serves as both a physical and visual connector, seamlessly integrating various product zones while injecting a sense of kinetic energy. This innovative design element not only establishes a cohesive industrial aesthetic but also subtly guides visitors through the space, enhancing the overall journey.
Beyond its visual impact, the layout fosters meaningful connections - not just between consumers and products, but also facilitating valuable face-to-face interactions between brands and their customers, as well as among visitors themselves. This human-centric design approach transforms the showroom from a mere display space into a dynamic hub of exploration and interaction, effectively bridging the gap between digital convenience and physical experience.
Credits
Entrant Company
Architecture and Urban Planning Design & Research Institute of HUST Co., Ltd.
Category
Architectural Design - Industrial
Entrant Company
DDON Planning & Design Co., Ltd
Category
Landscape Design - Residential Landscape
Entrant Company
FIYTA Precision Technology Co., Ltd,
Category
Fashion Design - Watches
Entrant Company
Shenzhen Feiyinian Design
Category
Interior Design - Event Space (NEW)