2025 | Professional

Entrant Company
Category
Client's Name
Country / Region
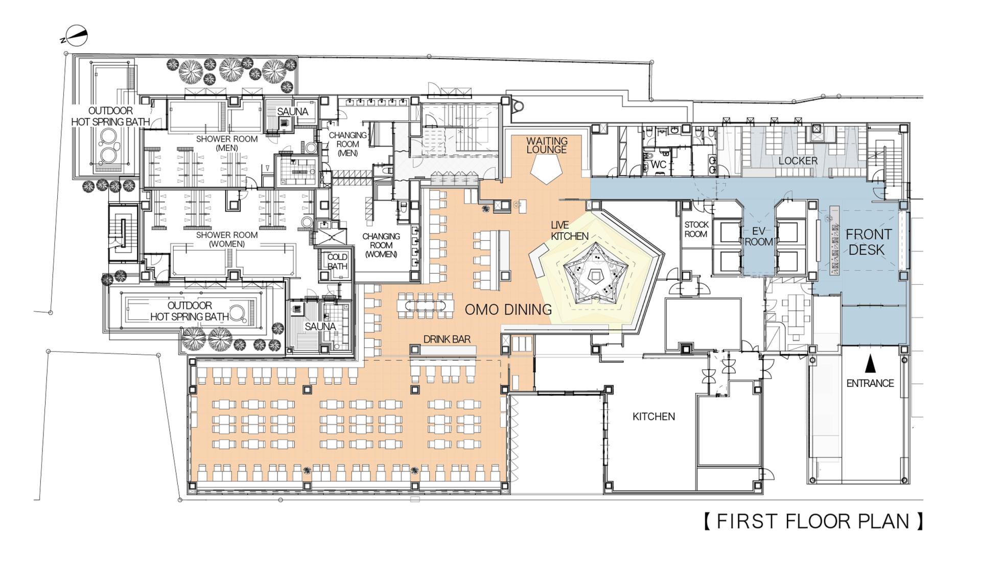
As a brand of “urban hotels that boost your travel excitement,” Hoshino Resorts is expanding its “OMO” hotels across Japan. This time, an existing hotel in a prime location in front of Hakodate Station, Hokkaido, has been rebranded as an “OMO” property, with extensions and renovations. This hotel ‘s concept of "120% Hakodate" incorporating unique local elements of Hakodate are expressed throughout the hotel, aiming for a design that enhances the excitement of travel in true OMO style. At the entrance, guests are welcomed by a huge stained-glass artwork inspired by Hakodate’s famous tourist attractions. In the public space for guests, called “OMO Base,” includes a “Neighborhood Map” showing local tourist spots and shops, and a relaxing area where guests can unwind with companions before or after exploring the city. We propose various ways to spend time such as relaxing with friends, based on the concept of “designing how guests spend their time and enjoy their stay.” The buffet restaurant, “OMO Dining,” features a live kitchen shaped like the star of Goryokaku, a major tourist landmark in Hakodate. The lively dining area is designed with elements of Hakodate's morning fish market, including squid-hanging lanterns and pendant lights made from fishing nets, evoking the vibrant atmosphere of the local port. The newly added dining area offers a bright and open hall, contrasted by the calm and cozy feel of the existing lower-ceilinged area, creating dynamic spatial variation. And the artwork dyed with squid ink adds a playful accent to the seating area.In the guest rooms, illustrations themed around the night view from Mt Hakodate are painted on the walls. also . We also designed a hidden theme, the squid symbolic of Hakodatecan be found in various parts of the room, adding a fun and exciting element to the travel experience. We designed an exciting facility that encapsulates the essence of travel and evokes the unique spirit of Hoshino Resorts.
Credits
Entrant Company
Chenjia Ren
Category
Conceptual Design - Student Design
Entrant Company
EFC Engineering Consulting Co., Ltd.
Category
Product Design - Building Technology
Entrant Company
Northeastern University
Category
Product Design - Heavy Machinery
Entrant Company
Steam Wave Design
Category
Interior Design - Residential